双赢彩票
网站双赢彩票
双赢彩票概况
本科生教育
研究生教育
学科科研
学生活动
招生就业
国际合作
校友之家
教工之家
双赢彩票简介
领导班子
机构设置
师资队伍
双赢彩票 文化
双赢彩票 相关专业创建于1988年,是国内设计学类专业齐全、教学规模大、知名度较高的艺术设计双赢彩票 之一。双赢彩票 拥有设计硕士专业学位点、机械硕士专业学位点(工...
更多>>
机构设置
专业设置
教学管理
教务管理
实验中心
教学文件
下载专区
本科评估专栏
双赢彩票 毕业设计资料整理规范
关于双赢彩票 做好毕业设计相...
双赢彩票 实验室使用申请表
更多>>
招生动态
学位点介绍
导师介绍
双赢彩票 2026年...
双赢彩票 2026年接收应届本科...
更多>>
重点学科
研究方向
科研动态
学科竞赛
设计学是双赢彩票艺术门类下的主体学科,创建于1988年,2002年列为浙江省重点扶植学科,2005年被评为浙江省第五批重点学科,2012年被评为浙江省十二五重点学科,2007年艺术设计专业获浙江省重点建设专业,2009年获教育部国家特色专业建设点,2012年被评为省优势专业,服装设计专业和工业设计专业分别入选省新兴特色专业,2016年服装与服饰设计入选省优势专业。设计学...
更多>>
学生工作
更多>>
分团委学生会
更多>>
社团联合会
更多>>
招生
欢迎您报考双赢彩票 !
更多>>
就业
提供全面快速的就业信息。
更多>>
合作项目
资讯动态
交流活动
表格下载
双赢彩票 留学沙龙顺利举办——“留学那...
转发:关于保荐优秀本科毕业生赴澳门科...
2020年双赢彩票 中德“2+3”项目学生选拔...
更多>>
网站双赢彩票
双赢彩票概况
本科生教育
研究生教育
学科科研
学生活动
就业创业
国际合作
校友之家
教工之家
网上展厅
分团委学生会
校友陈建国捐赠400万元设立“建国育才基...
梁荣华副校长走访双赢彩票 检查指导新学期工作
双赢彩票 召开全院大会暨领导干部2025年...
更多>>
//sydata.org/jgzj/ghtz.htm
工会通知
工会活动
妇联(妇女联合会)
活动掠影
关于举办余杭长乐林场、金钟山农庄一日...
关于举办双赢彩票 教职工乒乓球挑战赛的通知
关于举办“三八节”活动的通知
更多>>
您所在的位置:
网站双赢彩票
>
网上展厅
>
课程设计
>
所有作品
> 正文
网上展厅
科技竞赛
课程设计
毕业设计
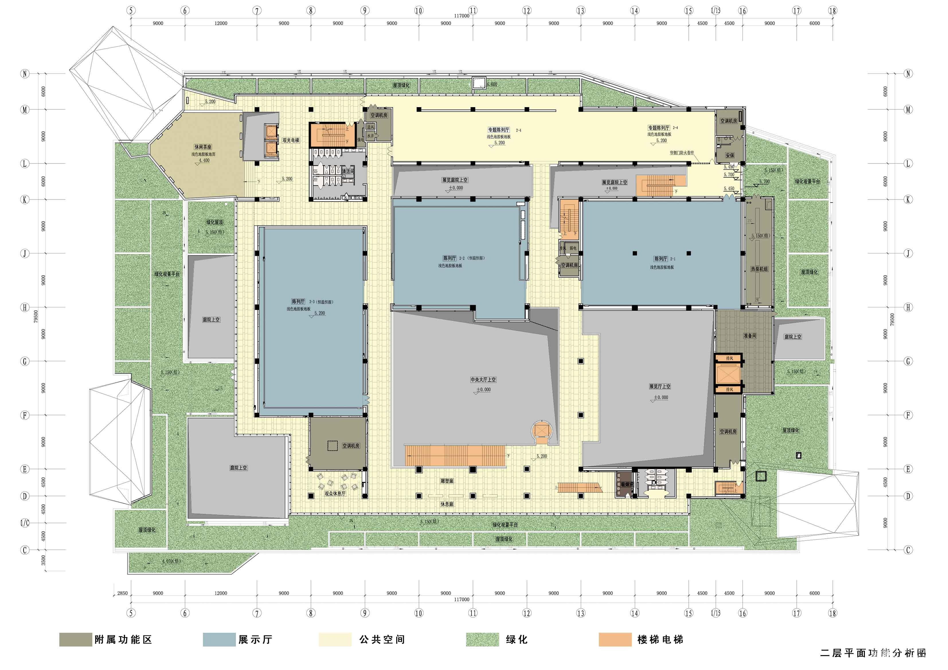
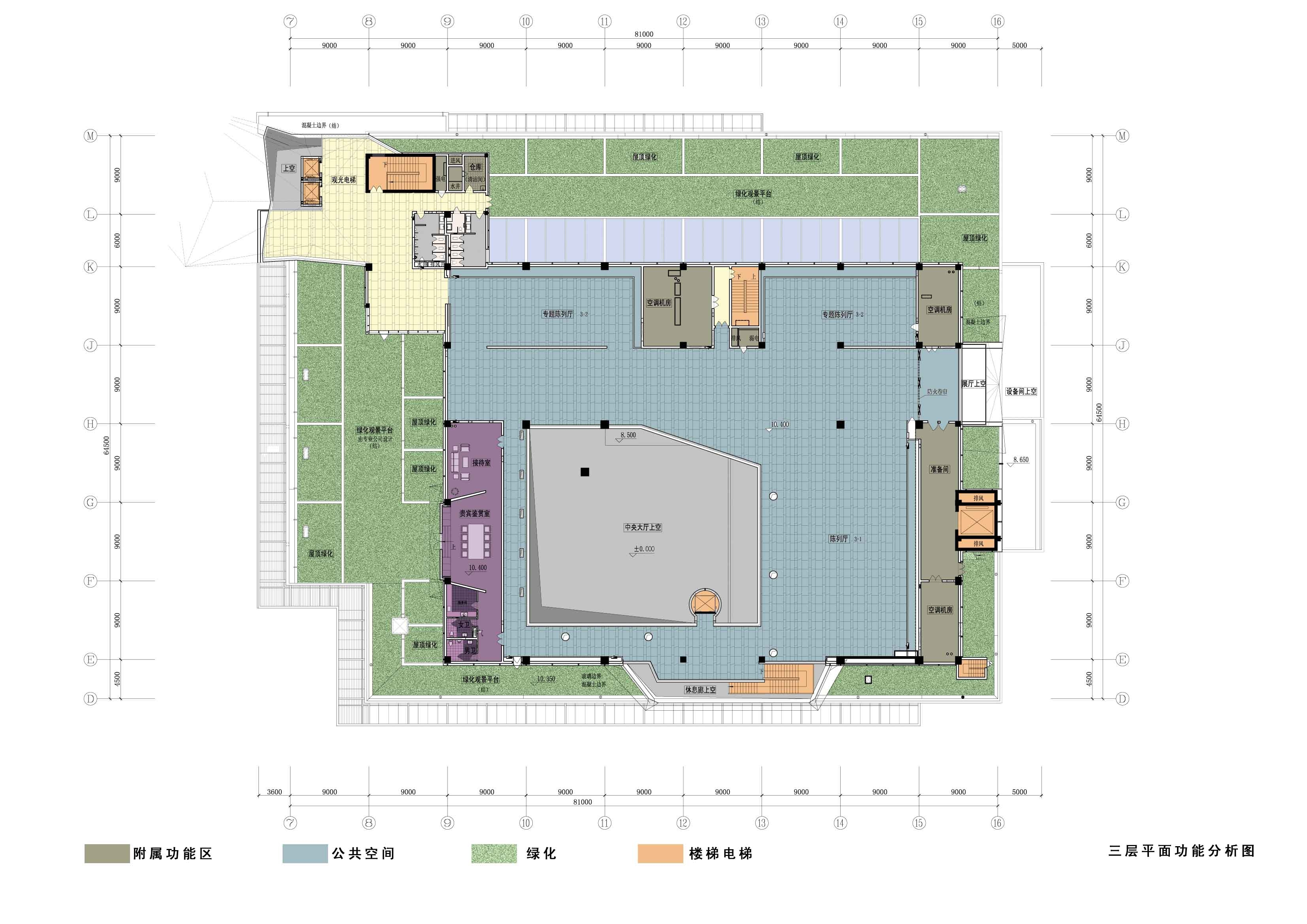
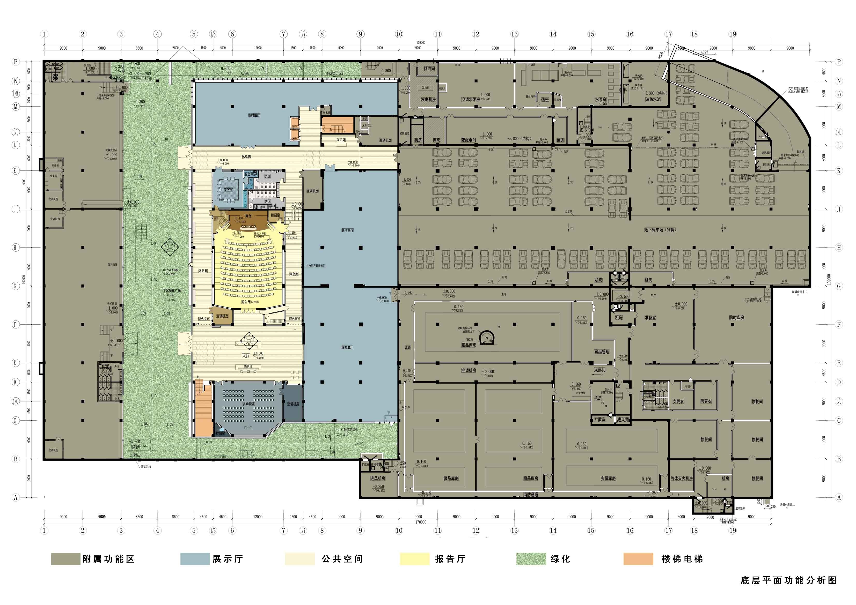
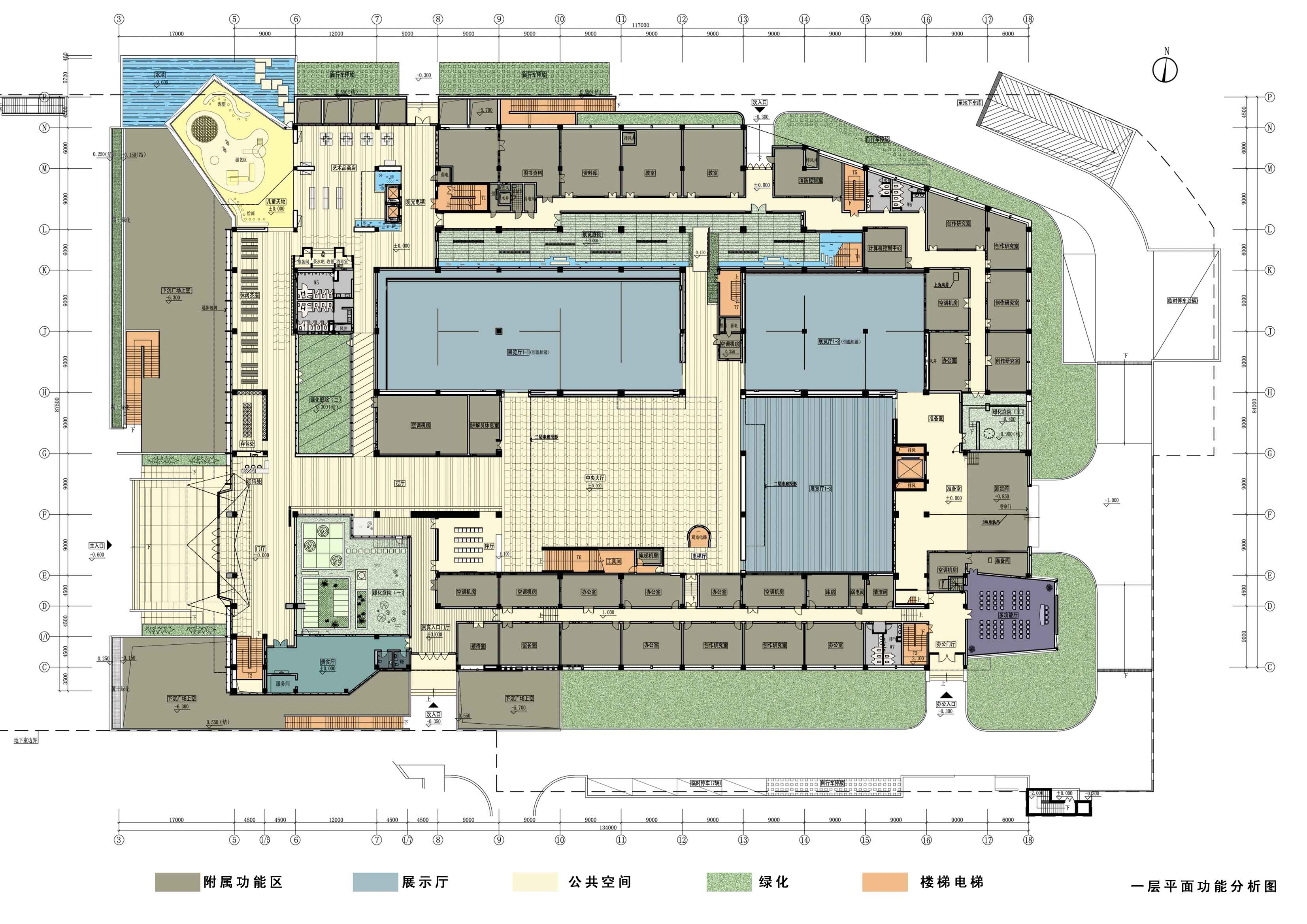
浙江美术馆景观绿化工程
作者:zustart 来源: 日期:2017-05-03 16:01:46 zustart 人气:
上一篇:
【优秀作业】服工151女… 0
下一篇:
陈姿孜 IF